Louer appartement 3 pièces de 70 m²
Présentation
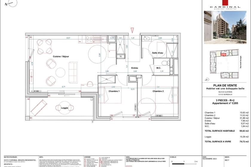
A LOUER_T3 Neuf de Grand Standing de 70.70m² _Bordeaux Brazza - A louer_T3 de 70.70m²_Un bien d'exception au cœur du nouveau Bordeaux
Dans une résidence neuve de standing nichée au cœur du quartier Brazza, rive droite de Bordeaux, ce magnifique appartement T3 offre un cadre de vie lumineux, contemporain et paisible.
Agencement et confort
Entrée avec dégagement spacieux et rangements intégrés
Séjour - cuisine ouverte (aménagée), ouvert sur une loggia
2 chambres (dont 1 avec placard)
Une salle d'eau
WC séparé
Résidence neuve, sécurisée et calme
Chauffage et eau chaude collective
Local vélo, espaces verts et cœur d'îlot paysager
1 Stationnement en sous-sol
Localisation privilégiée
Situé rue de Queyries, à deux pas de la Garonne, du pont Chaban-Delmas et de la Cité du Vin, le quartier Brazza incarne le renouveau architectural de Bordeaux.
Vous profiterez d'un environnement mêlant tranquillité, modernité et proximité immédiate des commerces, écoles et transports :
Tram A - Bus - Pistes cyclables vers le centre-ville.
Caractéristiques
Surface habitable : 70.70 m²
Loggia : 10.90 m²
Étage : R+2
Type : T3
Disponibilité : 01/12/2025
Votre contact pour toutes demandes et visites
@ : location@a-gestion.fr
Tèl : 02 28 55 01 24. Le bien est soumis au statut de la copropriété.
Loyer de 1 179,25 euros par mois charges comprises dont 115,66 euros par mois de provision pour charges (soumis à la régularisation annuelle).
Les honoraires charge locataire sont de 919,10 euros ( soit 13,00 euros/m² ) dont 212,10 euros pour état des lieux ( soit 3,00 euros/m² ).
Montant estimé des dépenses annuelles d'énergie pour un usage standard : entre 277 et 375 euros.
Informations complémentaires
Informations non contractuelles ne pouvant engager la société.
Surfaces approximatives non vérifiées.
Localisation du bien
Demande d'informations
Lefeuvre Immobilier Nantes Sigma 2000
Location | Gestion
Sigma 2000 - 7ème Étage
5 bd Vincent Gâche - CS 16327
44263 - Nantes Cedex 2
Service Gestion Locative : 02 46 88 00 39
Service Location : 02 51 72 94 76
Horaires d'ouverture :Du lundi au jeudi de 8h45 à 12h30 et de 13h30 à 17h30.
Le vendredi de 8h45 à 12h00 et de 13h30 à 17h00.


