Louer appartement 2 pièces de 57 m²
Présentation
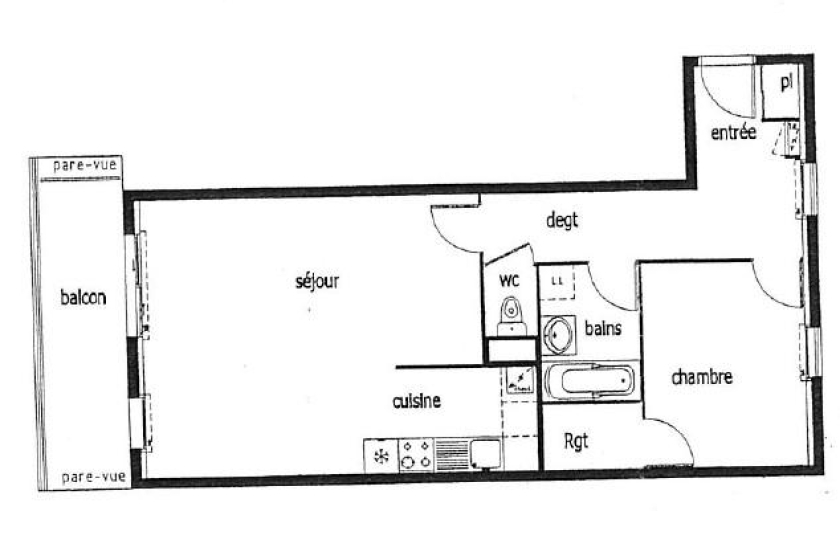
A LOUER - CARQUEFOU - LA FLEURIAYE - Appartement de 2 pièces de 57,47m² - GARAGE et BALCON - Dans la zone de LA FLEURIAYE, à moins de 2 km du centre-ville et à proximité des commerces. Situé au 1er étage avec ascenseur, bel appartement comprenant, une entrée sur dégagement desservant, une chambre avec dressing, une salle de bains, un séjour avec espace cuisine aménagée, tout donnant sur un balcon et WC séparés.
Garage en sous-sol. Chauffage et eau chaude : individuel gaz.
Charges comprises : entretien des parties communes, entretien chaudière et eau froide.
Classe énergétique : C
Logement Eligible à VISALE
Vous avez entre 18 et 30 ans ou si vous être salariés de + de 30 ans
Testez votre éligibilité sur le site de https://www.visale.fr/
Agent de location : Sarah BRISSON - 06.07.22.79.75. Le bien est soumis au statut de la copropriété.
Loyer de 656,12 euros par mois charges comprises dont 55,00 euros par mois de provision pour charges (soumis à la régularisation annuelle).
Les honoraires charge locataire sont de 601,00 euros ( soit 10,46 euros/m² ) dont 172,41 euros pour état des lieux ( soit 3,00 euros/m² ).
Montant estimé des dépenses annuelles d'énergie pour un usage standard : entre 460 et 690 euros.
Informations complémentaires
Informations non contractuelles ne pouvant engager la société.
Surfaces approximatives non vérifiées.
Localisation du bien
Demande d'informations
Lefeuvre Immobilier Nantes Sigma 2000
Location | Gestion
Sigma 2000 - 7ème Étage
5 bd Vincent Gâche - CS 16327
44263 - Nantes Cedex 2
Service Gestion Locative : 02 46 88 00 39
Service Location : 02 51 72 94 76
Horaires d'ouverture :Du lundi au jeudi de 8h45 à 12h30 et de 13h30 à 17h30.
Le vendredi de 8h45 à 12h00 et de 13h30 à 17h00.