Louer appartement 4 pièces de 85 m²

Carquefou (44)
1 104 € CC/mois
réf. GES12380068-724
 12 photos  ajouter
Exclusivité

Présentation

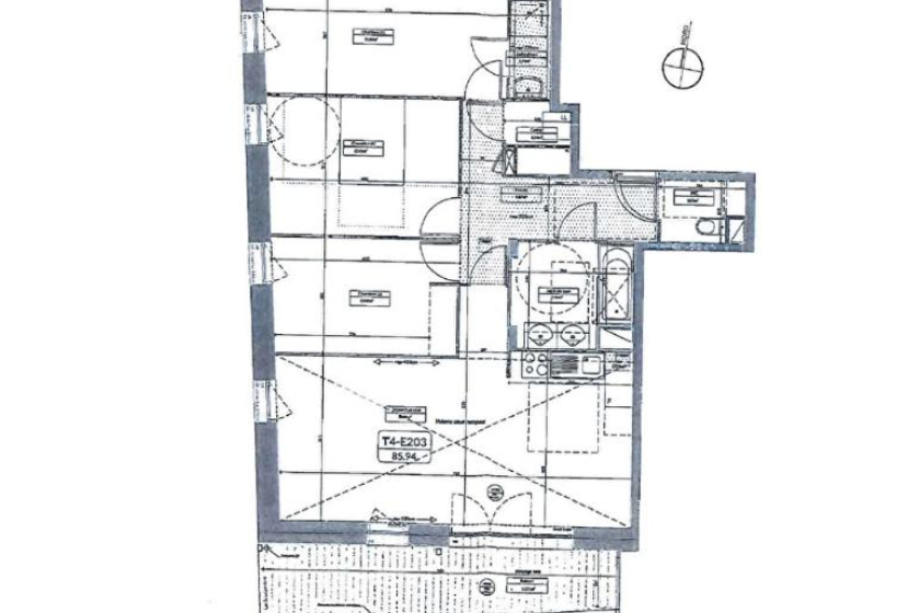
A LOUER - CARQUEFOU - LA FLEURIAYE - Appartement 4 pièces récent de 85.94 m² - Proche du bourg et des commerces. Situé au 2ème étage de cette résidence avec ascenseur, ce bel appartement de Type 4 de 85,94 m² vous offre, une entrée avec placard, WC séparé, un cellier, un séjour avec coin cuisine aménagée et équipée (plaques de cuisson et hotte), le tout donnant sur un balcon exposé plein sud, 3 chambres dont une suite parentale avec salle d'eau, et une salle de bains. Un cellier privatif sur palier.
Deux places de parking en sous-sol. Chauffage et eau chaude : COLLECTIF.
CONDITIONS DE RESSOURCES : LOI PINEL.
Charges comprises : entretien des parties communes, eau chaude, chauffage et eau froide.
Classe énergétique : C
Logement Eligible à VISALE
Vous avez entre 18 et 30 ans ou si vous être salariés de + de 30 ans
Testez votre éligibilité sur le site de https://www.visale.fr/
Agent de location : Sarah BRISSON - 06.07.22.79.75. Le bien est soumis au statut de la copropriété.

Loyer de 1 104,31 euros par mois charges comprises dont 200,00 euros par mois de provision pour charges (soumis à la régularisation annuelle).
Les honoraires charge locataire sont de 904,00 euros ( soit 10,52 euros/m² ) dont 260,40 euros pour état des lieux ( soit 3,03 euros/m² ).
Montant estimé des dépenses annuelles d'énergie pour un usage standard : entre 850 et 1 200 euros. Prix moyens des énergies indexés en 2023.

Informations complémentaires

Type T4
Etage 2
Année 2017
Chauffage Gaz, Collectif, Radiateur
Loyer 1 104 € CC/mois
Honoraires 904 €
Nombre de chambres 3
Nombre de pièces 4
Salle(s) de bain 1
Surface habitable 85 m²
Surface séjour 30 m²
Surface terrain -
logement très performant logement extrêmement consommateur d'énergie kWh/m² par an consommation (énergie primaire) kgCO₂/m² par an emissions DPE_ DPE_
kg CO₂/m² par an A B C D E F G émissions de CO₂ très importantes peu d'émissions de CO₂ * Dont émissions de gaz à effet de serre

 

Localisation du bien

 

Demande d'informations

Lefeuvre Immobilier Nantes Sigma 2000

Location  |  Gestion

Sigma 2000 - 7ème Étage
5 bd Vincent Gâche - CS 16327
44263 - Nantes Cedex 2

Service Gestion Locative : 02 46 88 00 39
Service Location : 02 51 72 94 76

Horaires d'ouverture :Du lundi au jeudi de 8h45 à 12h30 et de 13h30 à 17h30.
Le vendredi de 8h45 à 12h00 et de 13h30 à 17h00.

Fiche de l'agence  Localiser

En soumettant ce formulaire, j'ai bien pris connaissance que les informations saisies seront exploitées dans le cadre de la gestion de ma demande.
Pour en savoir plus, consultez notre Mention d'information sur le traitement des données personnelles Mention d'information sur le traitement des données personnelles.

 

Biens pouvant vous intéresser

Menu