Louer appartement 1 pièce de 32 m²

Nantes (44)
474 € CC/mois
réf. GES15380002-724
 8 photos  ajouter
Exclusivité

Présentation

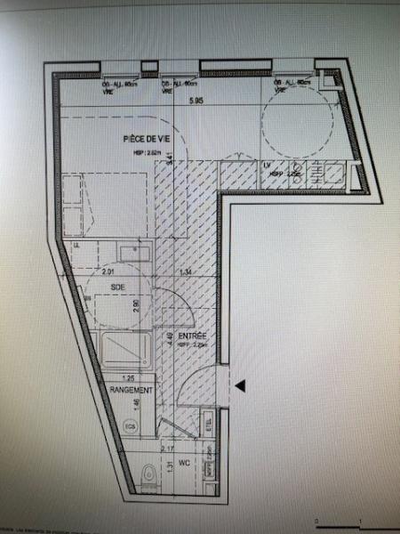
A LOUER - NANTES - Appartement 1 pièce de 32.10m² - Un appartement de type T1 de 32.1 m² situé au rdc comprenant une entrée, un salon avec cuisine aménagée et équipée (éléments hauts et bas et plaques de cuisson 2 feux) , une chambre, une salle d'eau et des wc séparés.
Eau froide et entretien des parties communes. Chauffage et eau chaude individuels électriques.

Garantie VISALE appréciée

Contacter Julie HIEBLOT 06 38 64 13 34. Le bien est soumis au statut de la copropriété.

Loyer de 474,00 euros par mois charges comprises dont 40,00 euros par mois de provision pour charges (soumis à la régularisation annuelle).
Les honoraires charge locataire sont de 434,00 euros ( soit 13,52 euros/m² ) dont 97,26 euros pour état des lieux ( soit 3,03 euros/m² ).
Montant estimé des dépenses annuelles d'énergie pour un usage standard : entre 526 et 712 euros. Prix moyens des énergies indexés en 2021.

Informations complémentaires

Type T1
Etage -
Année 2022
Chauffage Electrique, Individuel, Radiateur
Loyer 474 € CC/mois
Honoraires 434 €
Nombre de chambres -
Nombre de pièces 1
Salle(s) de bain -
Surface habitable 32 m²
Surface séjour 17 m²
Surface terrain -
logement très performant logement extrêmement consommateur d'énergie kWh/m² par an consommation (énergie primaire) kgCO₂/m² par an emissions DPE_ DPE_
kg CO₂/m² par an A B element C D E F G émissions de CO₂ très importantes peu d'émissions de CO₂ * Dont émissions de gaz à effet de serre

 

Localisation du bien

 

Demande d'informations

Lefeuvre Immobilier Nantes Sigma 2000

Location  |  Gestion

Sigma 2000 - 7ème Étage
5 bd Vincent Gâche - CS 16327
44263 - Nantes Cedex 2

Service Gestion Locative : 02 46 88 00 39
Service Location : 02 51 72 94 76

Horaires d'ouverture :Du lundi au jeudi de 8h45 à 12h30 et de 13h30 à 17h30.
Le vendredi de 8h45 à 12h00 et de 13h30 à 17h00.

Fiche de l'agence  Localiser

En soumettant ce formulaire, j'ai bien pris connaissance que les informations saisies seront exploitées dans le cadre de la gestion de ma demande.
Pour en savoir plus, consultez notre Mention d'information sur le traitement des données personnelles Mention d'information sur le traitement des données personnelles.

 

Biens pouvant vous intéresser

Menu