Louer appartement 1 pièce de 38 m²

Nantes (44)
582 € CC/mois
réf. GES13000044-724
 6 photos  ajouter
Exclusivité

Présentation

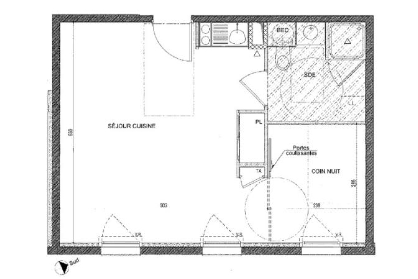
A LOUER - NANTES - ST DONATIEN- Appartement T1 BIS - A LOUER - NANTES - ST DONATIEN - LOI PINEL - Au cœur de ce quartier résidentiel avec ses commerces et les transports à proximité (ligne C1), bel appartement récent de Type T1 bis de 38 m². Situé au rez-de-chaussée de cette résidence aux pieds de la basilic, ce logement vous offre: une grande pièce de vie de 25.84 m² avec coin cuisine équipée (plaques de cuisson, hotte, four et réfrigérateur), un coin nuit séparé par une porte à galandage et une salle d'eau avec WC. Chauffage et eau chaude individuels électriques.
DISPONIBLE. Loyer mensuel charges comprises 515 € (dont 45 € de provisions pour charges soumises à régularisation annuelle) // Dépôt de garantie : 470€ // Honoraires charge locataire TTC 470 € // Classe énergétique : D. Le bien est soumis au statut de la copropriété.

Loyer de 582,00 euros par mois charges comprises dont 45,00 euros par mois de provision pour charges (soumis à la régularisation annuelle).
Les honoraires charge locataire sont de 525,00 euros ( soit 13,74 euros/m² ) dont 115,75 euros pour état des lieux ( soit 3,03 euros/m² ).
Montant estimé des dépenses annuelles d'énergie pour un usage standard : entre 520 et 750 euros. Prix moyens des énergies indexés en 2021.

Informations complémentaires

Type T1
Etage -
Année 2019
Chauffage Electrique, Individuel, Radiateur
Loyer 582 € CC/mois
Honoraires 525 €
Nombre de chambres -
Nombre de pièces 1
Salle(s) de bain -
Surface habitable 38 m²
Surface séjour 25 m²
Surface terrain -
logement très performant logement extrêmement consommateur d'énergie kWh/m² par an consommation (énergie primaire) kgCO₂/m² par an emissions DPE_ DPE_
kg CO₂/m² par an A B element C D E F G émissions de CO₂ très importantes peu d'émissions de CO₂ * Dont émissions de gaz à effet de serre

 

Localisation du bien

 

Demande d'informations

Lefeuvre Immobilier Nantes Sigma 2000

Location  |  Gestion

Sigma 2000 - 7ème Étage
5 bd Vincent Gâche - CS 16327
44263 - Nantes Cedex 2

Service Gestion Locative : 02 46 88 00 39
Service Location : 02 51 72 94 76

Horaires d'ouverture :Du lundi au jeudi de 8h45 à 12h30 et de 13h30 à 17h30.
Le vendredi de 8h45 à 12h00 et de 13h30 à 17h00.

Fiche de l'agence  Localiser

En soumettant ce formulaire, j'ai bien pris connaissance que les informations saisies seront exploitées dans le cadre de la gestion de ma demande.
Pour en savoir plus, consultez notre Mention d'information sur le traitement des données personnelles Mention d'information sur le traitement des données personnelles.

 

Biens pouvant vous intéresser

Menu