Louer appartement 2 pièces de 43 m²
Présentation
A LOUER - NANTES Route de la chapelle sur Erdre - Appartement T2 PINEL - A LOUER - NEUF - PINEL - Plusieurs logements T2 et T3 seront disponibles sur cette résidence.
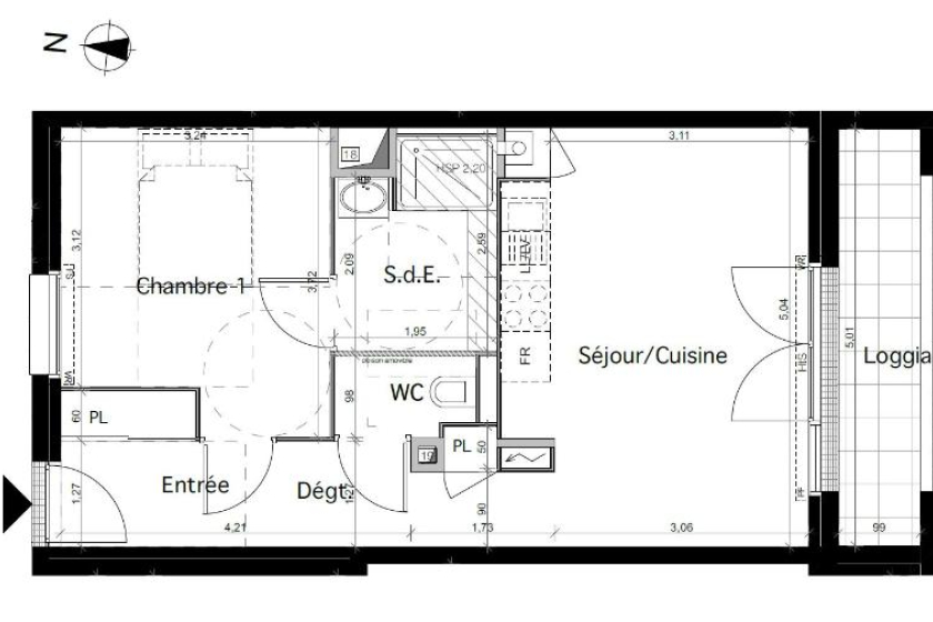
Dans une résidence neuve, un appartement 2 pièces de 43.40m² situé au 3ème étage avec ascenseur. Ce logement comprend une pièce de vie avec cuisine ouverte aménagée et équipée (plaques de cuisson, hotte) exposée sud, une chambre, une salle d'eau et WC séparés. Place de parking. Disponible fin Mai 2021.
Loyer CC 598 € (dont 60€ de provisions pour charges, soumises à régularisation annuelle pour entretien des communs et eau froide) // Dépôt de garantie 538€ TTC // Honoraires TTC 538€ // Classe énergétique Non communiqué
Dispositif fiscal PINEL - Plusieurs logements T2 et T3 seront disponibles sur cette résidence. Le bien est soumis au statut de la copropriété.
Loyer de 621,30 euros par mois charges comprises dont 50,00 euros par mois de provision pour charges (soumis à la régularisation annuelle).
Les honoraires charge locataire sont de 564,00 euros ( soit 13,00 euros/m² ) dont 131,50 euros pour état des lieux ( soit 3,03 euros/m² ).
Montant estimé des dépenses annuelles d'énergie pour un usage standard : entre 350 et 530 euros. Prix moyens des énergies indexés en 2023.
Informations complémentaires
Informations non contractuelles ne pouvant engager la société.
Surfaces approximatives non vérifiées.
Localisation du bien
Demande d'informations
Lefeuvre Immobilier Nantes Sigma 2000
Location | Gestion
Sigma 2000 - 7ème Étage
5 bd Vincent Gâche - CS 16327
44263 - Nantes Cedex 2
Service Gestion Locative : 02 46 88 00 39
Service Location : 02 51 72 94 76
Horaires d'ouverture :Du lundi au jeudi de 8h45 à 12h30 et de 13h30 à 17h30.
Le vendredi de 8h45 à 12h00 et de 13h30 à 17h00.


