Louer appartement 2 pièces de 44 m²
Présentation
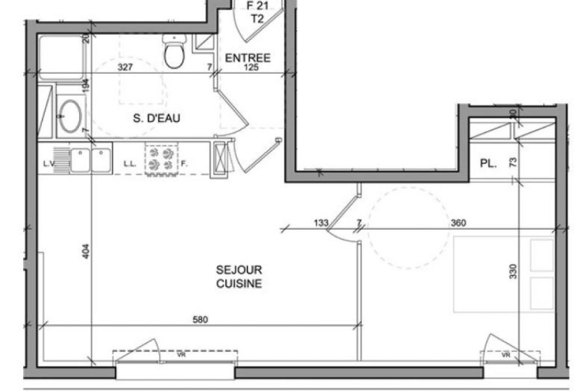
A LOUER - NANTES - ST JOSEPH DE PORTERIE - Appartement T2 de 44,29 m² - A LOUER - NANTES - ST JOSEPH DE PORTERIE - LOI SCELLIER SOCIAL. Entre les bords de l'Erdre et le bourg de St Joseph de Porterie, proche des commerces et des transports. Au deuxième étage avec ascenseur de cette résidence BBC, un appartement de Type 2 de 44.29 m² comprenant, une entrée, un séjour avec un coin cuisine aménagée, une grande chambre avec placard, et une salle d'eau avec WC. Place de parking en sous-sol. Chauffage et eau chaude individuels au gaz (système VGR: production collective et consommations individualisées). Loyer CC 547€ (dont 60 € de provisions pour charges, soumises à régularisation annuelle, pour l'entretien des parties communes et l'eau froide) // Dépôt de Garantie: 487€ // Honoraires TTC 486€ // Classe énergétique: A. Le bien est soumis au statut de la copropriété.
Loyer de 603,00 euros par mois charges comprises dont 70,00 euros par mois de provision pour charges (soumis à la régularisation annuelle).
Les honoraires charge locataire sont de 522,00 euros ( soit 11,79 euros/m² ) dont 132,87 euros pour état des lieux ( soit 3,00 euros/m² ).
Montant estimé des dépenses annuelles d'énergie pour un usage standard : entre 230 et 350 euros. Prix moyens des énergies indexés en 2021.
Informations complémentaires
Informations non contractuelles ne pouvant engager la société.
Surfaces approximatives non vérifiées.
Localisation du bien
Demande d'informations
Lefeuvre Immobilier Nantes Sigma 2000
Location | Gestion
Sigma 2000 - 7ème Étage
5 bd Vincent Gâche - CS 16327
44263 - Nantes Cedex 2
Service Gestion Locative : 02 46 88 00 39
Service Location : 02 51 72 94 76
Horaires d'ouverture :Du lundi au jeudi de 8h45 à 12h30 et de 13h30 à 17h30.
Le vendredi de 8h45 à 12h00 et de 13h30 à 17h00.


