Louer appartement 3 pièces de 63 m²

Nantes (44)
855 € CC/mois
réf. GES12900121-724
 3 photos  ajouter
Exclusivité

Présentation

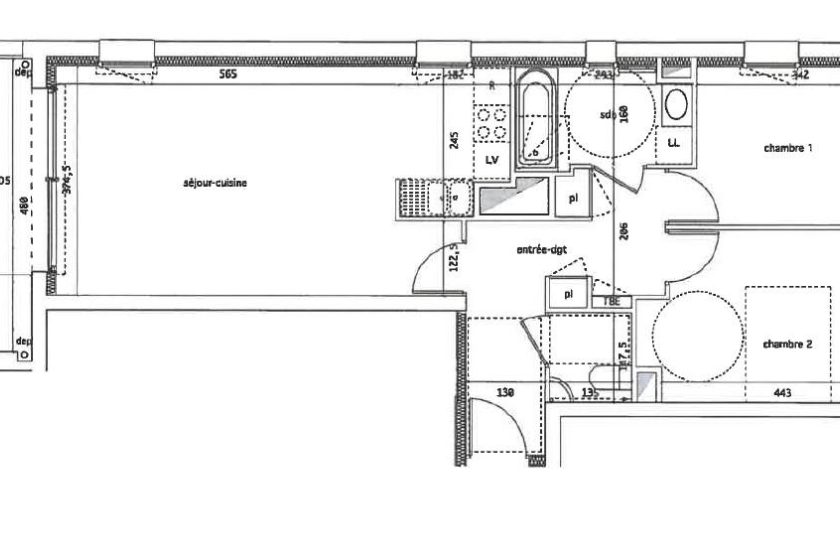
A LOUER - NANTES - GARE SUD Tryo - Appartement 3 pièces de 63m² - Au cœur de ce nouveau quartier, à deux pas des commerces et des transports (bus, tramway ligne 1, Busway et trains), bel appartement de 3 pièces de 63m². Situé au 14ème étage de cette résidence avec ascenseur, ce logement vous offre : une entrée avec placard, un séjour de 26.50 m² avec espace cuisine aménagée et équipée (plaques de cuisson à induction, hotte) le tout donnant sur une loggia de 8m² exposée sud/Ouest, deux chambres, une salle de bains et WC séparés. Place de parking en sous-sol.
CONDITIONS DE RESSOURCES : LOI PINEL.
Charges comprises : entretien des parties communes, eau froide, eau chaude et chauffage.
Classe énergétique : B
Logement Eligible à VISALE
Vous avez entre 18 et 30 ans ou si vous être salariés de + de 30 ans
Testez votre éligibilité sur le site de https://www.visale.fr/
Agent de location : Sarah BRISSON - 06.07.22.79.75. Le bien est soumis au statut de la copropriété.

Loyer de 854,95 euros par mois charges comprises dont 125,00 euros par mois de provision pour charges (soumis à la régularisation annuelle).
Les honoraires charge locataire sont de 678,00 euros ( soit 10,76 euros/m² ) dont 189,00 euros pour état des lieux ( soit 3,00 euros/m² ).
Montant estimé des dépenses annuelles d'énergie pour un usage standard : entre 410 et 600 euros.

Informations complémentaires

Type T3
Etage 14
Année 2019
Chauffage Collectif, Radiateur
Loyer 855 € CC/mois
Honoraires 678 €
Nombre de chambres 2
Nombre de pièces 3
Salle(s) de bain 1
Surface habitable 63 m²
Surface séjour 26 m²
Surface terrain -
logement très performant logement extrêmement consommateur d'énergie kWh/m² par an consommation (énergie primaire) kgCO₂/m² par an emissions DPE_ DPE_
kg CO₂/m² par an A B element C D E F G émissions de CO₂ très importantes peu d'émissions de CO₂ * Dont émissions de gaz à effet de serre

 

Localisation du bien

 

Demande d'informations

Lefeuvre Immobilier Nantes Sigma 2000

Location  |  Gestion

Sigma 2000 - 7ème Étage
5 bd Vincent Gâche - CS 16327
44263 - Nantes Cedex 2

Service Gestion Locative : 02 46 88 00 39
Service Location : 02 51 72 94 76

Horaires d'ouverture :Du lundi au jeudi de 8h45 à 12h30 et de 13h30 à 17h30.
Le vendredi de 8h45 à 12h00 et de 13h30 à 17h00.

Fiche de l'agence  Localiser

En soumettant ce formulaire, j'ai bien pris connaissance que les informations saisies seront exploitées dans le cadre de la gestion de ma demande.
Pour en savoir plus, consultez notre Mention d'information sur le traitement des données personnelles Mention d'information sur le traitement des données personnelles.

 

Biens pouvant vous intéresser

Menu