Louer appartement 3 pièces de 63 m²
Présentation
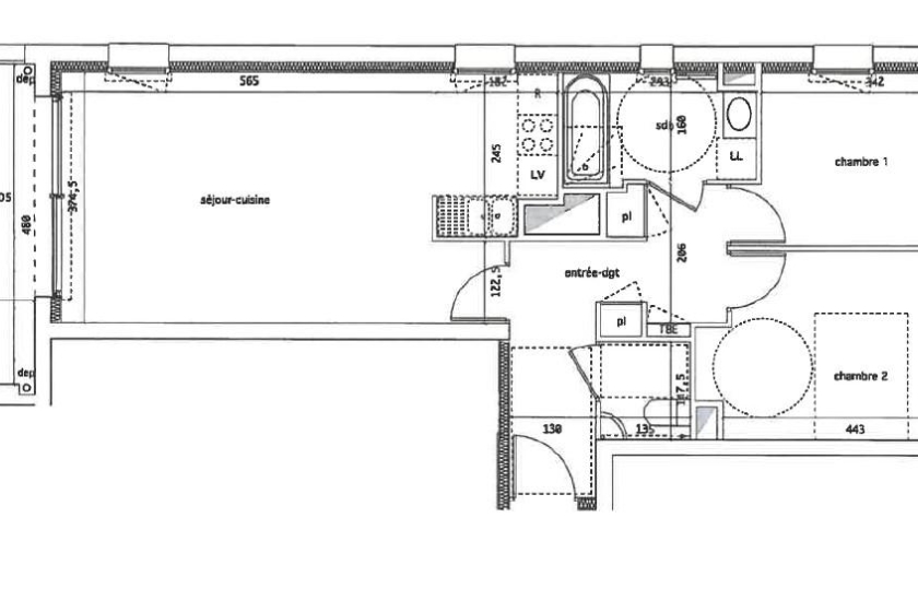
A LOUER - NANTES - GARE SUD Tryo - Appartement 3 pièces de 63m² - Au cœur de ce nouveau quartier, à deux pas des commerces et des transports (bus, tramway ligne 1, Busway et trains), bel appartement de 3 pièces de 63m². Situé au 14ème étage de cette résidence avec ascenseur, ce logement vous offre : une entrée avec placard, un séjour de 26.50 m² avec espace cuisine aménagée et équipée (plaques de cuisson à induction, hotte) le tout donnant sur une loggia de 8m² exposée sud/Ouest, deux chambres, une salle de bains et WC séparés. Place de parking en sous-sol.
CONDITIONS DE RESSOURCES : LOI PINEL.
Charges comprises : entretien des parties communes, eau froide, eau chaude et chauffage.
Classe énergétique : B
Logement Eligible à VISALE
Vous avez entre 18 et 30 ans ou si vous être salariés de + de 30 ans
Testez votre éligibilité sur le site de https://www.visale.fr/
Agent de location : Sarah BRISSON - 06.07.22.79.75. Le bien est soumis au statut de la copropriété.
Loyer de 854,95 euros par mois charges comprises dont 125,00 euros par mois de provision pour charges (soumis à la régularisation annuelle).
Les honoraires charge locataire sont de 678,00 euros ( soit 10,76 euros/m² ) dont 189,00 euros pour état des lieux ( soit 3,00 euros/m² ).
Montant estimé des dépenses annuelles d'énergie pour un usage standard : entre 410 et 600 euros.
Informations complémentaires
Informations non contractuelles ne pouvant engager la société.
Surfaces approximatives non vérifiées.
Localisation du bien
Demande d'informations
Lefeuvre Immobilier Nantes Sigma 2000
Location | Gestion
Sigma 2000 - 7ème Étage
5 bd Vincent Gâche - CS 16327
44263 - Nantes Cedex 2
Service Gestion Locative : 02 46 88 00 39
Service Location : 02 51 72 94 76
Horaires d'ouverture :Du lundi au jeudi de 8h45 à 12h30 et de 13h30 à 17h30.
Le vendredi de 8h45 à 12h00 et de 13h30 à 17h00.


