Louer appartement 3 pièces de 64 m²

Nantes (44)
858 € CC/mois
réf. GES15410063-724
 9 photos  ajouter
Exclusivité

Présentation

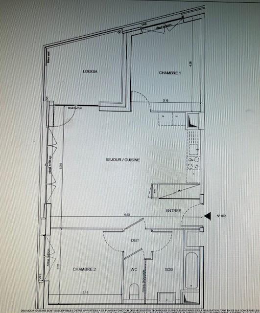
A LOUER - GARE SUD - Appartement de 3 pièces de 64,42m² - - Proche de la gare, à proximité des commerces et des transport. Situé au 10em étage avec ascenseur de cette résidence de 2023, bel appartement comprenant, une entrée sur dégagement desservant, un salon-séjour avec un espace cuisine aménagé et équipé (plaques vitrocéramiques et hotte), le tout donnant sur une belle terrasse de 9.59 m², deux chambres, une salle de bains et WC séparés.
Place de parking en sous-sol.
Les charges comprennent l'eau froide, l'eau chaude, le chauffage et l'entretien des parties communes.

Logement Eligible à VISALE
Vous avez entre 18 et 30 ans ou si vous être salariés de + de 30 ans
Testez votre éligibilité sur le site de https://www.visale.fr/
Agent de location : Julie HIEBLOT 06.38.64.13.34. Le bien est soumis au statut de la copropriété.

Loyer de 858,00 euros par mois charges comprises dont 110,00 euros par mois de provision pour charges (soumis à la régularisation annuelle).
Les honoraires charge locataire sont de 748,00 euros ( soit 11,61 euros/m² ) dont 193,26 euros pour état des lieux ( soit 3,00 euros/m² ).
Montant estimé des dépenses annuelles d'énergie pour un usage standard : entre 397 et 538 euros. Prix moyens des énergies indexés en 2021.

Informations complémentaires

Type T3
Etage 10
Année 2023
Chauffage Gaz, Collectif
Loyer 858 € CC/mois
Honoraires 748 €
Nombre de chambres 2
Nombre de pièces 3
Salle(s) de bain 1
Surface habitable 64 m²
Surface séjour 29 m²
Surface terrain -
logement très performant logement extrêmement consommateur d'énergie kWh/m² par an consommation (énergie primaire) kgCO₂/m² par an emissions DPE_ DPE_
kg CO₂/m² par an A B element C D E F G émissions de CO₂ très importantes peu d'émissions de CO₂ * Dont émissions de gaz à effet de serre

 

Localisation du bien

 

Demande d'informations

Lefeuvre Immobilier Nantes Sigma 2000

Location  |  Gestion

Sigma 2000 - 7ème Étage
5 bd Vincent Gâche - CS 16327
44263 - Nantes Cedex 2

Service Gestion Locative : 02 46 88 00 39
Service Location : 02 51 72 94 76

Horaires d'ouverture :Du lundi au jeudi de 8h45 à 12h30 et de 13h30 à 17h30.
Le vendredi de 8h45 à 12h00 et de 13h30 à 17h00.

Fiche de l'agence  Localiser

En soumettant ce formulaire, j'ai bien pris connaissance que les informations saisies seront exploitées dans le cadre de la gestion de ma demande.
Pour en savoir plus, consultez notre Mention d'information sur le traitement des données personnelles Mention d'information sur le traitement des données personnelles.

 

Biens pouvant vous intéresser

Menu