Louer appartement 3 pièces de 66 m²
Présentation
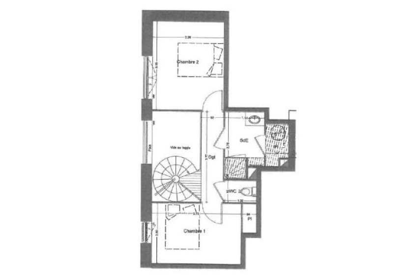
A LOUER - T3 DUPLEX - NANTES - Beaujoire - LOI PINEL - A deux pas des transports, bel appartement de 3 pièces en DUPLEX de 66.46 m². Situé au 7ème étage de cette résidence avec ascenseur, ce logement lumineux vous offre au 1er niveau une entrée avec placard et cellier, une beau séjour lumineux avec une cuisine ouverte aménagée et équipée (plaques de cuisson, hotte et four) le tout donnant sur une loggia de 7.71 m² exposée nord-ouest avec escalier pour atteindre l'étage. Au second niveau un dégagement dessert 2 chambres, une salle d'eau et WC séparés. Un stationnement privatif couvert. Chauffage et eau chaude individuels électriques.
CONDITIONS DE RESSOURCES : LOI PINEL.
Charges comprises : entretien des parties communes et eau froide.
Classe énergétique : B
Logement Eligible à VISALE
Vous avez entre 18 et 30 ans ou si vous être salariés de + de 30 ans
Testez votre éligibilité sur le site de https://www.visale.fr/
Agent de location : Sarah BRISSON - 06.07.22.79.75. Le bien est soumis au statut de la copropriété.
Loyer de 803,60 euros par mois charges comprises dont 70,00 euros par mois de provision pour charges (soumis à la régularisation annuelle).
Les honoraires charge locataire sont de 681,00 euros ( soit 10,25 euros/m² ) dont 199,38 euros pour état des lieux ( soit 3,00 euros/m² ).
Montant estimé des dépenses annuelles d'énergie pour un usage standard : entre 490 et 720 euros.
Informations complémentaires
Informations non contractuelles ne pouvant engager la société.
Surfaces approximatives non vérifiées.
Localisation du bien
Demande d'informations
Lefeuvre Immobilier Nantes Sigma 2000
Location | Gestion
Sigma 2000 - 7ème Étage
5 bd Vincent Gâche - CS 16327
44263 - Nantes Cedex 2
Service Gestion Locative : 02 46 88 00 39
Service Location : 02 51 72 94 76
Horaires d'ouverture :Du lundi au jeudi de 8h45 à 12h30 et de 13h30 à 17h30.
Le vendredi de 8h45 à 12h00 et de 13h30 à 17h00.


