Louer appartement 3 pièces de 70 m²
Présentation
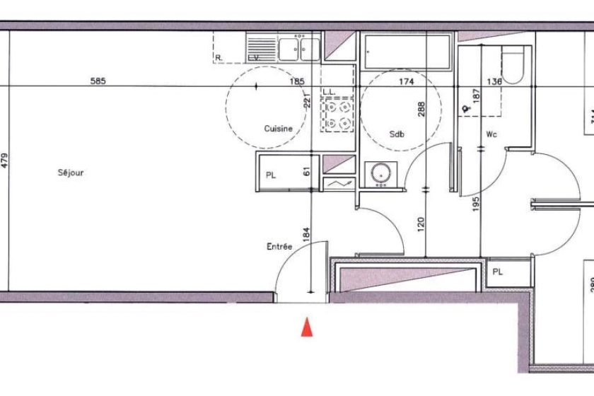
A LOUER- NANTES - MANGIN - Appartement T3 de 70.71m² - A LOUER- NANTES - MANGIN - Appartement T3 de 70.71m², LOI SCELLIER INTERMEDIAIRE , 6ème étage comprenant :une entrée, un dégagement avec placard, un séjour avec coin cuisine le tout donnant sur une loggia de 8.17m², un wc séparé, une salle de bains, deux chambres dont une avec placard.
Chauffage et eau chaude collectifs au gaz. Eau froide et entretien des parties communes inclus dans les charges.
Le bien dispose d'une place de parking en sous sol.
Logement Eligible à VISALE
Vous avez entre 18 et 30 ans ou si vous être salariés de + de 30 ans
Testez votre éligibilité sur le site de https://www.visale.fr/
Contacter Julie HIEBLOT 06 38 64 13 34. Le bien est soumis au statut de la copropriété.
Loyer de 975,00 euros par mois charges comprises dont 140,00 euros par mois de provision pour charges (soumis à la régularisation annuelle).
Les honoraires charge locataire sont de 761,00 euros ( soit 10,78 euros/m² ) dont 211,83 euros pour état des lieux ( soit 3,00 euros/m² ).
Montant estimé des dépenses annuelles d'énergie pour un usage standard : entre 300 et 440 euros. Prix moyens des énergies indexés en 2021.
Informations complémentaires
Informations non contractuelles ne pouvant engager la société.
Surfaces approximatives non vérifiées.
Localisation du bien
Demande d'informations
Lefeuvre Immobilier Nantes Sigma 2000
Location | Gestion
Sigma 2000 - 7ème Étage
5 bd Vincent Gâche - CS 16327
44263 - Nantes Cedex 2
Service Gestion Locative : 02 46 88 00 39
Service Location : 02 51 72 94 76
Horaires d'ouverture :Du lundi au jeudi de 8h45 à 12h30 et de 13h30 à 17h30.
Le vendredi de 8h45 à 12h00 et de 13h30 à 17h00.


