Louer appartement 4 pièces de 113 m²
Présentation
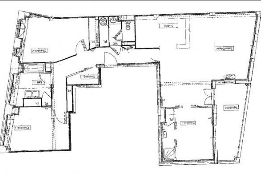
A LOUER - NANTES - NANTES GRASLIN - Appartement 4 pièces de 113,54m² - A LOUER - NANTES - GRASLIN -
Au coeur de ce quartier recherché en plein centre historique, situé au pieds des commerces, très bel appartement de standing de 4 pièces d'environ 113.54 m². Situé au 2ème étage de cette résidence classée entièrement rénovée en 2009, ce logement vous offre une entrée avec placard, une pièce de vie spacieuse sur parquet massif exposée sud donnant sur une terrasse privative avec vue sur le jardin de la copropriété, une cuisine aménagée et équipée (meubles, hotte, plaques de cuisson et four) ouverte sur le séjour, une chambre avec salle d'eau privative donnant sur la terrasse, deux autres chambres avec placard, un dressing, une salle de bains et WC séparés.
Double garage en sous-sol sécurisé.
Chauffage et eau chaude individuels électriques.
Contacter Julie HIEBLOT 06 38 64 13 34. Le bien est soumis au statut de la copropriété.
Loyer de 1 874,00 euros par mois charges comprises dont 160,00 euros par mois de provision pour charges (soumis à la régularisation annuelle).
Les honoraires charge locataire sont de 1 457,00 euros ( soit 12,85 euros/m² ) dont 343,66 euros pour état des lieux ( soit 3,03 euros/m² ).
Montant estimé des dépenses annuelles d'énergie pour un usage standard : entre 1 400 et 1 930 euros. Prix moyens des énergies indexés en 2021.
Informations complémentaires
Informations non contractuelles ne pouvant engager la société.
Surfaces approximatives non vérifiées.
Localisation du bien
Demande d'informations
Lefeuvre Immobilier Nantes Sigma 2000
Location | Gestion
Sigma 2000 - 7ème Étage
5 bd Vincent Gâche - CS 16327
44263 - Nantes Cedex 2
Service Gestion Locative : 02 46 88 00 39
Service Location : 02 51 72 94 76
Horaires d'ouverture :Du lundi au jeudi de 8h45 à 12h30 et de 13h30 à 17h30.
Le vendredi de 8h45 à 12h00 et de 13h30 à 17h00.


