Louer appartement 2 pièces de 46 m²
Présentation
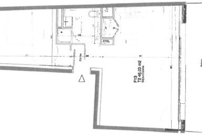
A LOUER - SAINT-HERBLAIN- Appartement T2 de 46,03 m² - LOI PINEL - Situé au rez-de-chaussée de cette résidence, un appartement T2 comprenant : une entrée avec placard, un séjour lumineux avec vue dégagée donnant sur une terrasse privée de plus de 15m², une cuisine ouverte, une chambre, une salle d'eau avec WC.
Une place de parking extérieur
Eau chaude et chauffage individuelles gaz
Compris dans les charges : L'entretien des parties communes et l'eau froide
Contacter Julie HIEBLOT 06.38.64.13.34. Le bien est soumis au statut de la copropriété.
Loyer de 604,00 euros par mois charges comprises dont 35,00 euros par mois de provision pour charges (soumis à la régularisation annuelle).
Les honoraires charge locataire sont de 550,00 euros ( soit 11,95 euros/m² ) dont 139,47 euros pour état des lieux ( soit 3,03 euros/m² ).
Montant estimé des dépenses annuelles d'énergie pour un usage standard : entre 460 et 680 euros. Prix moyens des énergies indexés en 2021.
Informations complémentaires
Informations non contractuelles ne pouvant engager la société.
Surfaces approximatives non vérifiées.
Localisation du bien
Demande d'informations
Lefeuvre Immobilier Nantes Sigma 2000
Location | Gestion
Sigma 2000 - 7ème Étage
5 bd Vincent Gâche - CS 16327
44263 - Nantes Cedex 2
Service Gestion Locative : 02 46 88 00 39
Service Location : 02 51 72 94 76
Horaires d'ouverture :Du lundi au jeudi de 8h45 à 12h30 et de 13h30 à 17h30.
Le vendredi de 8h45 à 12h00 et de 13h30 à 17h00.


