Louer appartement 3 pièces de 64 m²
Présentation
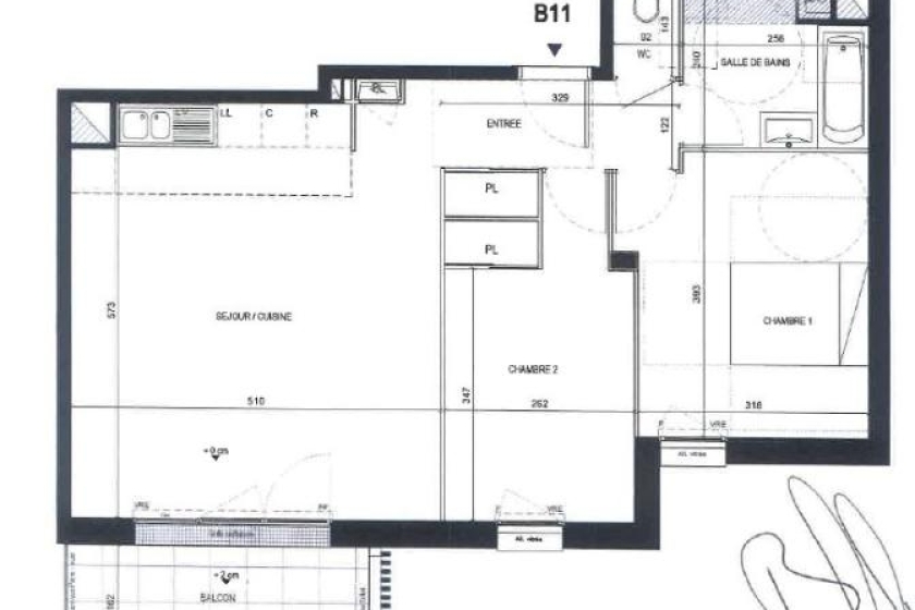
A LOUER - SAINT HERBLAIN- LOI PINEL - Appartement T3 de 65m² - A LOUER - NEUF - PINEL - Dans une résidence neuve, un appartement 3 pièces de 65m² situé au 1er étage avec ascenseur. Ce logement comprend une pièce de vie avec cuisine ouverte aménagée et équipée (plaques de cuisson, hotte) exposée sud-ouest, deux chambres, une salle de bains et WC séparés. Place de parking. Loyer CC 780 € // Honoraires TTC 700€ // Classe énergétique : A.
Dispositif fiscal PINEL. Le bien est soumis au statut de la copropriété.
Loyer de 797,00 euros par mois charges comprises dont 55,00 euros par mois de provision pour charges (soumis à la régularisation annuelle).
Les honoraires charge locataire sont de 687,00 euros ( soit 10,61 euros/m² ) dont 194,25 euros pour état des lieux ( soit 3,00 euros/m² ).
Montant estimé des dépenses annuelles d'énergie pour un usage standard : entre 430 et 640 euros. Prix moyens des énergies indexés en 2021.
Informations complémentaires
Informations non contractuelles ne pouvant engager la société.
Surfaces approximatives non vérifiées.
Localisation du bien
Demande d'informations
Lefeuvre Immobilier Nantes Sigma 2000
Location | Gestion
Sigma 2000 - 7ème Étage
5 bd Vincent Gâche - CS 16327
44263 - Nantes Cedex 2
Service Gestion Locative : 02 46 88 00 39
Service Location : 02 51 72 94 76
Horaires d'ouverture :Du lundi au jeudi de 8h45 à 12h30 et de 13h30 à 17h30.
Le vendredi de 8h45 à 12h00 et de 13h30 à 17h00.

