Louer appartement 2 pièces de 40 m²

Toulouse (31)
554 € CC/mois
réf. GES07660012-857
 7 photos  ajouter
Exclusivité

Présentation

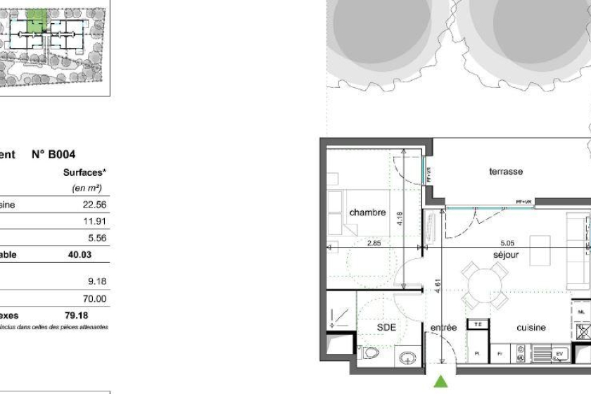
APPARTEMENT - TYPE 2 - 40M² - APPARTEMENT - TYPE 2 - TOULOUSE
SECTEUR : GUILHERMY
LOI PINEL.

Appartement neuf non meublé, situé au rez de chaussée d'une résidence de 2024, comprenant : une entrée avec placard, une cuisine aménagée donnant sur le séjour, une chambre et une salle d'eau avec WC. Profitez également d'une terrasse et d'un jardin !

Bénéficiez d'une place de parking en annexe !
A proximité des commerces et des transports.
CHAUFFAGE INDIVIDUEL ELECTRIQUE.
Loyer de 553,94 euros par mois charges comprises dont 50,00 euros par mois de provision pour charges (soumis à la régularisation annuelle).
Les honoraires charge locataire sont de 503,94 euros ( soit 12,59 euros/m² ) dont 121,29 euros pour état des lieux ( soit 3,03 euros/m² ).
Montant estimé des dépenses annuelles d'énergie pour un usage standard : entre 506 et 684 euros. Prix moyens des énergies indexés en 2021.

Informations complémentaires

Type T2
Etage -
Année -
Chauffage Electrique, Individuel
Loyer 554 € CC/mois
Honoraires 504 €
Nombre de chambres 1
Nombre de pièces 2
Salle(s) de bain -
Surface habitable 40 m²
Surface séjour 22 m²
Surface terrain -
logement très performant logement extrêmement consommateur d'énergie kWh/m² par an consommation (énergie primaire) kgCO₂/m² par an emissions DPE_ DPE_
kg CO₂/m² par an A B element C D E F G émissions de CO₂ très importantes peu d'émissions de CO₂ * Dont émissions de gaz à effet de serre

 

Localisation du bien

 

Demande d'informations

Agence Nantes - Ile de Nantes

Location  |  Gestion

Sigma 2000 - 3ème Étage
5 bd Vincent Gâche - CS 16327
44263 - Nantes Cedex 2

Service Location : 02.28.55.01.24

En soumettant ce formulaire, j'ai bien pris connaissance que les informations saisies seront exploitées dans le cadre de la gestion de ma demande.
Pour en savoir plus, consultez notre Mention d'information sur le traitement des données personnelles Mention d'information sur le traitement des données personnelles.

Menu