Louer colocation 3 pièces de 69 m²

L'Épine (85)
819 € CC/mois
réf. GES13120007-724
 7 photos  ajouter
Exclusivité

Présentation

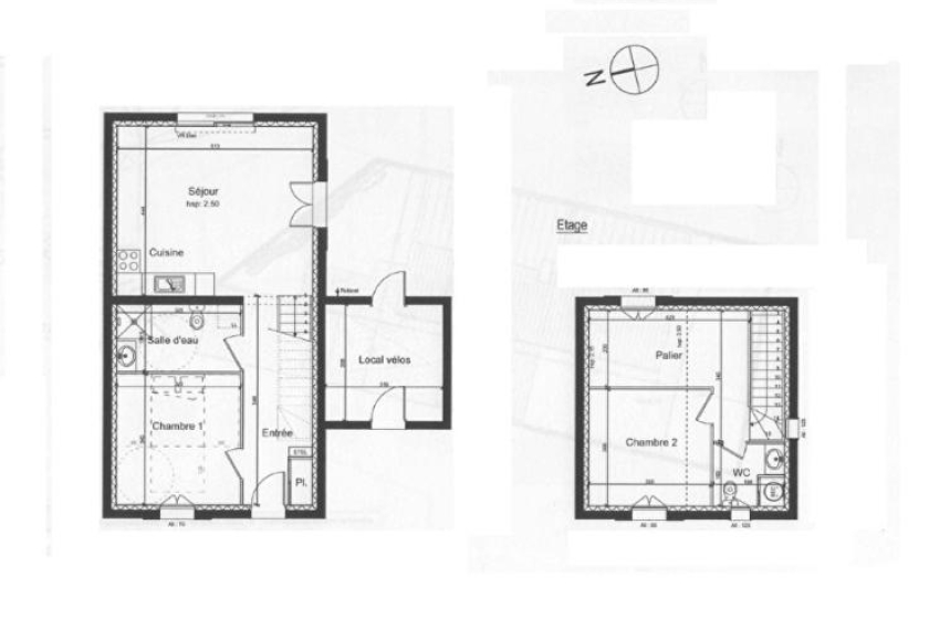
A LOUER - NOIRMOUTIER - L'EPINE - Maison 3 pièces de 69.90 m2 - Proche de la plage - Maison sur 2 niveaux. Ce logement comprend au rez de chaussée, une entrée avec placard, un séjour avec cuisine aménagée et équipée (plaques de cuisson, hotte et four), une chambre et une salle d'eau avec WC. Au 1er étage, un grand pallier, une chambre et un WC. Local vélo privatif de 9,50m², et un terrain de 102m². Chauffage et eau chaude individuels électriques. Eau froide individuelle.
CONDITIONS DE RESSOURCES : LOI PINEL.
Charges comprises : entretien des parties communes et éclairage des voiries
Classe énergétique : B.
Loyer de 819,12 euros par mois charges comprises dont 30,00 euros par mois de provision pour charges (soumis à la régularisation annuelle).
Les honoraires charge locataire sont de 731,21 euros ( soit 10,51 euros/m² ) dont 210,89 euros pour état des lieux ( soit 3,03 euros/m² ).
Montant estimé des dépenses annuelles d'énergie pour un usage standard : entre 710 et 1 000 euros. Prix moyens des énergies indexés en 2021.

Informations complémentaires

Type T3
Etage -
Année 2019
Chauffage Electrique, Individuel
Loyer 819 € CC/mois
Honoraires 731 €
Nombre de chambres 2
Nombre de pièces 3
Salle(s) de bain -
Surface habitable 69 m²
Surface séjour -
Surface terrain 102 m²
logement très performant logement extrêmement consommateur d'énergie kWh/m² par an consommation (énergie primaire) kgCO₂/m² par an emissions DPE_ DPE_
kg CO₂/m² par an A B element C D E F G émissions de CO₂ très importantes peu d'émissions de CO₂ * Dont émissions de gaz à effet de serre

 

Localisation du bien

 

Demande d'informations

Lefeuvre Immobilier Nantes Sigma 2000

Location  |  Gestion

Sigma 2000 - 7ème Étage
5 bd Vincent Gâche - CS 16327
44263 - Nantes Cedex 2

Service Gestion Locative : 02 46 88 00 39
Service Location : 02 51 72 94 76

Horaires d'ouverture :Du lundi au jeudi de 8h45 à 12h30 et de 13h30 à 17h30.
Le vendredi de 8h45 à 12h00 et de 13h30 à 17h00.

Fiche de l'agence  Localiser

En soumettant ce formulaire, j'ai bien pris connaissance que les informations saisies seront exploitées dans le cadre de la gestion de ma demande.
Pour en savoir plus, consultez notre Mention d'information sur le traitement des données personnelles Mention d'information sur le traitement des données personnelles.

Menu