Louer appartement 2 pièces de 52 m²
Présentation
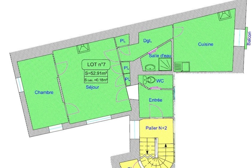
A LOUER - NANTES - TALENSAC - Appartement 2 pièces de 52.91m2 - Au cœur du centre ville, à deux pas des commerces et des transports (tramways et bus), bel appartement de 2 pièces de 52.91m². Situé au 2ème étage sur 3 de cet immeuble sans ascenseur, ce logement lumineux exposé sud-ouest comprend, une entrée, WC, une pièce vie, une cuisine séparée aménagée et équipée (plaques de cuisson, hotte et four), une chambre et une salle d'eau. Pas de parking ni de cave.
Chauffage et eau chaude : individuel électrique.
Charges comprises : entretien des parties communes et eau froide.
Classe énergétique : D
Logement Eligible à VISALE
Vous avez entre 18 et 30 ans ou si vous être salariés de + de 30 ans
Testez votre éligibilité sur le site de https://www.visale.fr/
Agent de location : Sarah BRISSON - 06.07.22.79.75. Le bien est soumis au statut de la copropriété.
Loyer de 706,07 euros par mois charges comprises dont 62,00 euros par mois de provision pour charges (soumis à la régularisation annuelle).
Les honoraires charge locataire sont de 644,00 euros ( soit 12,17 euros/m² ) dont 160,32 euros pour état des lieux ( soit 3,03 euros/m² ).
Montant estimé des dépenses annuelles d'énergie pour un usage standard : entre 1 180 et 1 640 euros. Prix moyens des énergies indexés en 2023.
Informations complémentaires
Informations non contractuelles ne pouvant engager la société.
Surfaces approximatives non vérifiées.
Localisation du bien
Demande d'informations
Lefeuvre Immobilier Nantes Sigma 2000
Location | Gestion
Sigma 2000 - 7ème Étage
5 bd Vincent Gâche - CS 16327
44263 - Nantes Cedex 2
Service Gestion Locative : 02 46 88 00 39
Service Location : 02 51 72 94 76
Horaires d'ouverture :Du lundi au jeudi de 8h45 à 12h30 et de 13h30 à 17h30.
Le vendredi de 8h45 à 12h00 et de 13h30 à 17h00.


