Louer appartement 3 pièces de 75 m²
Présentation
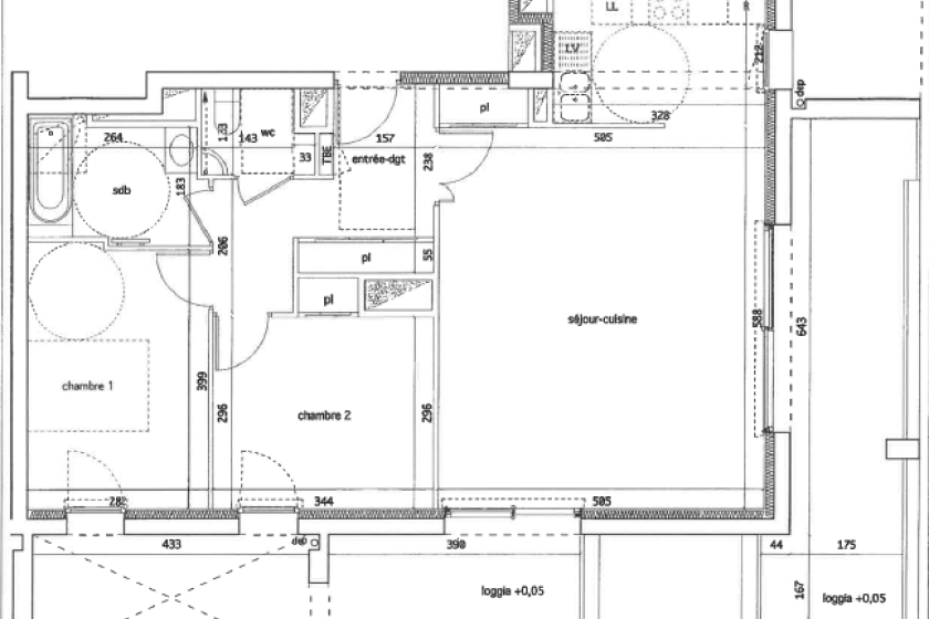
A LOUER - NANTES Gare SUD - Résidence TRYO - LOI PINEL. Appartement 3 pièces de 75 m² - Au cœur de ce nouveau quartier, à deux pas des commerces et des transports (bus, tramway ligne 1, Busway et trains), bel appartement de 3 pièces de 75 m². Situé au 16ème étage de cette résidence avec ascenseur, ce logement vous offre : une entrée avec placard, un vaste séjour de 37.70 m² avec coin cuisine aménagée et équipée, le tout donnant sur 2 loggias d'un total de 28.60 m² exposées EST/OUEST , deux chambres, une salle de bains et WC séparés.
Place de parking en sous-sol. Chauffage et eau chaude : COLLECTIF.
CONDITIONS DE RESSOURCES : LOI PINEL.
Charges comprises : entretien des parties communes, eau chaude, chauffage et eau froide.
Classe énergétique : B
Logement Eligible à VISALE
Vous avez entre 18 et 30 ans ou si vous être salariés de + de 30 ans
Testez votre éligibilité sur le site de https://www.visale.fr/
Service location : 06 33 57 92 91. Le bien est soumis au statut de la copropriété.
Loyer de 957,39 euros par mois charges comprises dont 80,00 euros par mois de provision pour charges (soumis à la régularisation annuelle).
Les honoraires charge locataire sont de 794,00 euros ( soit 10,59 euros/m² ) dont 227,25 euros pour état des lieux ( soit 3,03 euros/m² ).
Montant estimé des dépenses annuelles d'énergie pour un usage standard : entre 450 et 650 euros. Prix moyens des énergies indexés en 2023.
Informations complémentaires
Informations non contractuelles ne pouvant engager la société.
Surfaces approximatives non vérifiées.
Localisation du bien
Demande d'informations
Lefeuvre Immobilier Nantes Sigma 2000
Location | Gestion
Sigma 2000 - 7ème Étage
5 bd Vincent Gâche - CS 16327
44263 - Nantes Cedex 2
Service Gestion Locative : 02 46 88 00 39
Service Location : 02 51 72 94 76
Horaires d'ouverture :Du lundi au jeudi de 8h45 à 12h30 et de 13h30 à 17h30.
Le vendredi de 8h45 à 12h00 et de 13h30 à 17h00.


